top of page
Working Drawings
BAS Year 3, NMMU
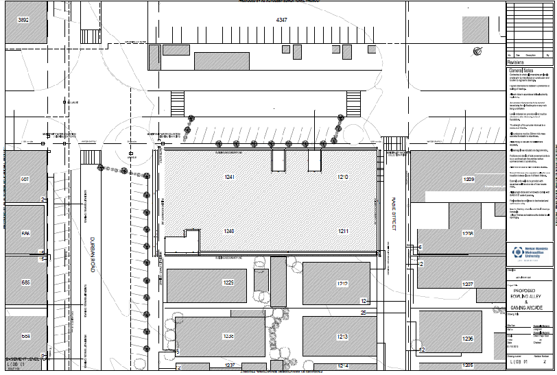
Detail drawings: Bowlling Alley & Gaming Experience (Korsten, PE, South Africa)

Cover

Contents

Site Plan

Roof plan

Basement Plan

Ground floor Plan

First floor Plan

Basement Electric Plan

Ground Floor Electric Plan

First Floor Electric Plan

Section A-A Part 1

Section A-A Part 2

Section B-B

Part Wall Section

Stair Section & Assembly

Office Windows Component & Assembly Details

N-W & S-W Elevation

Door Schedule
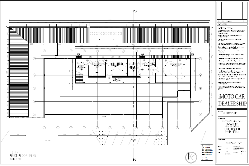
Detail drawings: iMoto Car Dealership (Njoli Street, PE, South Africa)

iMoto SiteP

iMoto GP

iMoto FFP

iMoto Short Section

iMoto Part Wall Section

iMoto Tread Detail

iMoto Stair Detail

iMoto Elevations

iMoto Door & Window schedulel

iMoto Finishing & Sanitaryware schedulel
bottom of page